Hytter

  • Bestill katalog
  • Se våre hytter
  • Se våre hus
  • Til salgs
  • Om oss
    • Hus og hytter
      • Våre hus
      • Våre hytter
      • Til Salgs
      • Hyttefelt
      • Visningshytte
    • Andre bygg
      • Anneks og boder
      • Kuben – påbygg
      • Minihus
    • Inspirasjon
      • Bildegalleri
      • Nyheter
    • Om oss
      • Våre medarbeidere
      • Leverandører av høy kvalitet
      • Vår historie
  • Kontakt oss
Hytter

  • Bestill katalog
  • Se våre hytter
  • Se våre hus
  • Til salgs
  • Om oss
        • Andre bygg
          • Anneks og boder
          • Kuben - påbygg
          • Minihus
        • Hus og hytter
          • Våre hus
          • Våre hytter
          • Til Salgs
          • Hyttefelt
          • Visningshytte
        • Inspirasjon
          • Bildegalleri
          • Nyheter
        • Om oss
          • Våre medarbeidere
          • Leverandører av høy kvalitet
          • Vår historie
  • Kontakt oss
HORISONT

HORISONT

HORISONT-serien

Horisont-n01Horisont_02-n01Horisont_01-n01Horisont_Vinter-n01

Property ID : 

None

Soverom
2 - 3
Baderom
2
BRA
74,6 sq ft

Beskrivelse

Tar naturen inn i stua/kjøkkenet! Gavl- og langveggen består av mange vinduer og du får mange fine siktlinjer. Varierte og effektive modeller som kan passe de fleste som drømmer om en hytte.

  • Horisont 1
  • Horisont 2
  • Horisont 3
  • Horisont 4
  • Horisont 5
  • Horisont 6

Du kommer inn i en romslig entré. Herfra via gangen tar du deg videre enten til soverommene, badet eller vaskerommet som også har plass til en ekstra dusj og wc. Går du gjennom gangen så kommer du til stue og kjøkkenet som gir et flott utsyn til naturen. De store vindusflatene gjør opplevelsen av hytta større ved å dra naturen inn. Innenfor kjøkkenet er det egen tv stue som kan benyttes avskjermet, evt. kan dette også omgjøres til et soverom til. I tillegg har du mulighet for utvendig bod på ene gavlveggen.

Soverom

2

Baderom

2

BRA

74,7 m²

Hems

-

Kundepris, område 1 *

Fra 2 402 500,-

Ferdig hytte over grunnmur

Kundepris, område 2 *

Fra 2 491 400,-

Ferdig hytte over grunnmur

Tilvalg Tretak Tovtak Beiset innvedig Grunnet kledning
Horisont 1
Fra 142 840,-
Fra 106 910,-
Fra 74 200,-
Fra 4 750,-

Du kommer inn i en romslig entré. Herfra via gangen tar du deg videre til to av soverommene, badet eller vaskerommet som også har plass til en ekstra dusj og wc. TV-stuen gir det også muligheter for ekstra soveplass. Fra den store stuen/kjøkkenet kan du nyte utsyn til naturen gjennom de store vindusflatene. Egen adkomst til et romslig soverom 3. Mulighet for utvendig bod på ene gavlen.

Soverom

3

Baderom

2

BRA

82,6 m²

Hems

-

Kundepris, område 1 *

Fra 2 539 600,-

Ferdig hytte over grunnmur

Kundepris, område 2 *

Fra 2 633 600,-

Ferdig hytte over grunnmur

Tilvalg Tretak Tovtak Beiset innvedig Grunnet kledning
Horisont 2
Fra 156 210,-
Fra 115 760,-
Fra 79 960,-
Fra 5 050,-

Stor og god entré med tilgang til et stort bad, eller som tar deg videre enten til soverom eller vaskerommet som har plass til en ekstra dusj og wc.  Fra stuen og kjøkkenet med mønt himling, kan du gå ut til en overbygget uteplass, og kjenne på de forskjellige årstider. Mønt himling gir en veldig god romfølelse grunnet stor takhøyde. Fra stuen/kjøkkenet får du også tilgang til soverom og til en ekstra TV-stue. Mulighet for utvendig bod på ene gavlen.

Soverom

2

Baderom

2

BRA

74,6 m²

Hems

-

Kundepris, område 1 *

Fra 2 575 100,-

Ferdig hytte over grunnmur

Kundepris, område 2 *

Fra 2 670 400,-

Ferdig hytte over grunnmur

Tilvalg Tretak Tovtak Beiset innvedig Grunnet kledning
Horisont 3
Fra 162 900,-
Fra 121 070,-
Fra 74 820,-
Fra 5 610,-

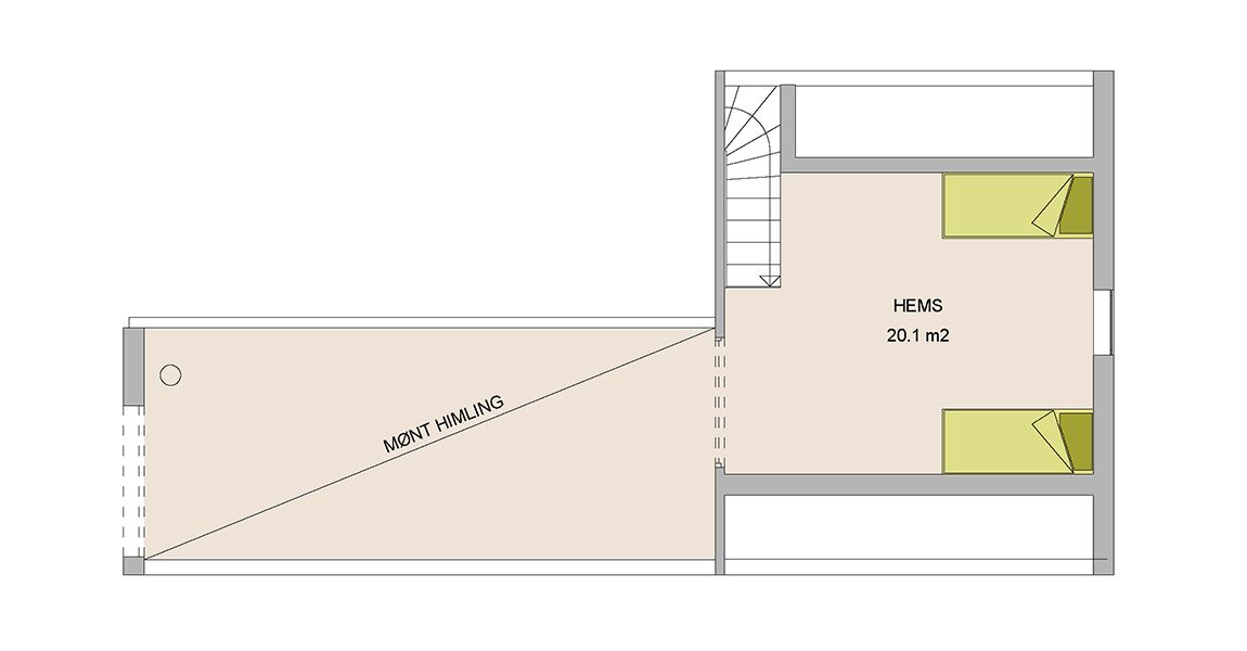
Stor og god entré med tilgang til et stort bad. Herfra får du også tilgang til hemsen som gir ekstra muligheter og plass. I gangen kommer du videre til vaskerom som også har plass til en ekstra dusj og wc, eller til en innvendig bod. Stuen gir med sin mønt himling ekstra luft og romfølelse i rommet, herfra kan du gå ut til en overbygget uteplass, og være ute uansett vær. Fra stuen/kjøkkenet får du også tilgang til soverommene.

Soverom

2

Baderom

2

BRA

74,6 m²

Hems

Ja

20_23701_Horisont-4_01
21_23701_Horisont-4_02

Kundepris, område 1 *

Fra 2 886 700,-

Ferdig hytte over grunnmur

Kundepris, område 2 *

Fra 2 993 500,-

Ferdig hytte over grunnmur

Tilvalg Tretak Tovtak Beiset innvedig Grunnet kledning
Horisont 4
Fra 168 450,-
Fra 124 230,-
Fra 88 500,-
Fra 5 840,-

Stor og god entré med tilgang til et stort bad. I gangen kommer du videre til vaskerom som også har plass til en ekstra dusj og wc, eller til det ene soverommet. Stuen gir med sin mønte himling ekstra luft til rommet, herfra kan du gå ut til en overbygget uteplass, å se Horisonten i det fri. Fra stuen/kjøkkenet får du også tilgang til en ekstra TV-stue, og soverom 3.

Soverom

3

Baderom

2

BRA

90,3 m²

Hems

-

Kundepris, område 1 *

Fra 2 868 100,-

Ferdig hytte over grunnmur

Kundepris, område 2 *

Fra 2 959 900,-

Ferdig hytte over grunnmur

Tilvalg Tretak Tovtak Beiset innvedig Grunnet kledning
Horisont 5
Fra 189 630,-
Fra 138 940,-
Fra 88 700,-
Fra 6 110,-

Stor og god entré med tilgang til et stort bad, eller som tar deg via gangen videre enten til soverom eller vaskerommet som også har plass til en ekstra dusj og wc. Du har også tilgang til en romslig bod fra inne, selv om boden også har egen utvendig dør. Fra gangen har du tilgang til hemsen som byr på god plass og gir en ekstra dimensjon i hytta. Fra stuen med mønt himling, kan du gå ut til en overbygget uteplass, og senke skuldrene utendørs. Fra stuen/kjøkkenet får du også tilgang til soverom og til en ekstra TV-stue.

Soverom

2

Baderom

2

BRA

90,3 m²

Hems

Ja

23_23701_Horisont-6_01
24_23701_Horisont-6_02

Kundepris, område 1 *

Fra 3 164 600,-

Ferdig hytte over grunnmur

Kundepris, område 2 *

Fra 3 265 900,-

Ferdig hytte over grunnmur

Tilvalg Tretak Tovtak Beiset innvedig Grunnet kledning
Horisont 6
Fra 195 510,-
Fra 142 270,-
Fra 101 800,-
Fra 6 370,-
Prisene er inklusive mva. og basert på indeksnivå SSB august 2025:163,9
* Sone 1 gjelder inntil 10 mil fra Lillehammer. Sone 2 fra 11-25 mil fra Lillehammer. Områder utenfor, pris på forespørsel. Forbehold om feil i prisliste.

Leveransebeskrivelse

Innholdsrik leveranse

For våre hytteserier så har vi valgt en god standard som utgangspunkt. Her får du en kvalitetsleveranse med tidsriktige materialvalg, fint utseende som igjen gjør at du opplever dette som et god standard. Utover dette kan det naturligvis gjøres tilpasninger og oppgraderinger om ønskelig.

Utvendig

Felles for leveransen:
  • Kvalitetsshingel på tak
  • Ytterdør Ina, hvit med glass
  • Boddør tett, hvit
  • Låvepanel ubehandlet
  • Inntrekte vinduer for energieffektivitet, hvitmalt fra Røros Vinduet
  • Takrenne i sort stål med nedløp
  • Bunnledninger (i kundens betongplate), rør/oppstikk vann/avløp jfr. std. tegning.
  • Utekran på vegg
  • Inntaksskap for strøm
  • Utelamper
  • Blåseisolerte vegger/himling som gir energieffektivitet
  • Takverk konstruert tung belastning 650KWn
  • Takstige
  • Snøfangere når det er krav
  • Solid og bred vindski i limtreutførelse

Innvendig

Entre
  • Downlights med dimmer
  • Gulvflis 60x60cm med varmekabel
  • Slettpanel på alle vegger og himling (ubehandlet)
  • Listverk glatt rund (ubehandlet)

Kjøkken/Stue

  • Kvalitetskjøkken fra Norema
  • Slettpanel på alle vegger og himling (ubehandlet)
  • Listverk glatt rund (ubehandlet)
  • Kvalitetsgulvet Coastal OAK
  • Innerdører Line 1 speil, kompakt hvit
  • Stålpipe sort med peisovn og glassplate på gulv
  • Panelovn

Soverom

  • Slettpanel på alle vegger og himling (ubehandlet)
  • Listverk glatt rund (ubehandlet)
  • Kvalitetsgulvet Coastal OAK
  • Innerdører Line 1 speil, kompakt hvit
  • Panelovn
  • Taklampe

Bad

  • Downlights med dimmer
  • Vegghengt toalett
  • Baderomsinnregning med underskap og speil m/lys
  • Dusjvegger 80*80/90*90, innfellbare dører
  • Veggflis i dusjhjørne 60x60cm
  • Gulvflis 60x60cm med sokkelflis og varmekabler
  • Slettpanel på øvrige vegger med tett sjikt bak
  • Innerdører Line 1 speil, kompakt hvit
  • Avtrekksvifte hvit

Vaskerom

  • Gulvflis 60x60cm med sokkelflis og varmekabler
  • Slettpanel ubehandlet på øvrige vegger
  • Listverk glatt rund (ubehandlet)
  • Innerdører Line 1 speil, kompakt hvit
  • Avtrekksvifte hvit

WC

  • Vegghengt toalett
  • Servantinnredning med speil og lys
  • Slettpanel på alle vegger og himling (ubehandlet)
  • Listverk glatt rund (ubehandlet)
  • Kvalitetsgulvet Coastal OAK
  • Innerdører Line 1 speil, kompakt hvit

Badstue

  • Granpanel på vegg og himling
  • Gulvflis 60x60cm med sokkelflis
  • Benk i utførelse gran
  • Badstue dør i glass
  • Elektrisk badstueovn

Teknisk rom

  • Gulvflis 60x60cm med sokkelflis
  • Slettpanel på alle vegger og himling (ubehandlet)
  • Listverk glatt rund (ubehandlet)
  • Innerdører Line 1 speil, kompakt hvit

Hems

  • Downlights med dimmer
  • Slettpanel på alle vegger og himling (ubehandlet)
  • Listverk glatt rund (ubehandlet)
  • Kvalitetsgulvet Coastal OAK
  • Hemsstige eller trapp, ubehandlet
  • Innerdører Line 1 speil, kompakt hvit

Bod innvendig

  • Gulvflis 60x60cm med sokkelflis
  • Slettpanel på alle vegger og himling (ubehandlet)
  • Listverk glatt rund (ubehandlet)
  • Innerdører Line 1 speil, kompakt hvit

Sportsbod

  • Uisolert og synlig reisverk vegg/tak
  • Leveres intet på gulv
  • Tett boddør, hvit

For mer informasjon ta kontakt med en av våre selgere for gjennomgang. Vi vil tilpasse innholdet til deg, så ta kontakt for flere opplysninger.

Viktig for deg å vite og som er en del av vår leveranse

  • Norsk Standard 3425 kontrakt som bygger på Bustadoppføringslova. Dette betyr at du som privatperson er sikret lovverk som ivaretar deg som kjøper på en trygg og forutsigbar måte. Blant annet betyr dette at du:
    • I byggeperioden er sikret garantistillelse på 10 % av kontraktsbeløp, samt forsikring på bygget.
    • Fra overtagelse har du 5 års reklamasjonstid, denne garanti på 5 % stilles også av på leveransen fra Blåne.
  • Ansvarlig søker og samordner byggesøknaden og føler opp til og med ferdigattest.
  • Ansvarlig prosjekterende for enkel situasjonsplan med terrengprofil som følger byggesøknaden
  • Ansvarlig prosjekterende for tegning, konstruksjon og det arkitektoniske.
  • Bygger iht. byggeteknisk forskrift TEK 17.
  • Veggelementer produserer på vår fabrikk i Gudbrandsdalen, dette sikrer tørre elementer ut på byggeplass som igjen gir kortere uttørkingsfase.
  • Isolering skjer på byggeplass i vegger og himling. Sprøyteisolering sikrer det beste resultatet og gir meget kompakte og energieffektive boliger/hytter.
  • Blånes ansatte byggeledere og faste snekkere følger opp byggeplassen.
  • Rigg, stillas, frakt, heising og losji for snekkere er inkludert for Blånes leveranse
  • Blåne benytter kjente og sterke merkevarer gjennom solide norske samarbeidspartnere.
  • Overlevering gås sammen med kunde og i tråd med Bustadoppføringslova.
  • Etter ett år kommer vi tilbake til deg på etterårsbefaring.

 

Leveringsalternativer

Byggesett

Elektroklar

Ferdig hytte

Innenfor stilene kan vi gjøre individuelle tilpasninger.

Ta kontakt med oss for pris på din nye hytte

Bestill hyttekatalog

Vi vil gjøre det enkelt for folk flest å realisere hyttedrømmen. Siden folk flest er forskjellige betyr dette for oss å tilby stor valgfrihet innenfor rammer som gjør prosjektet realiserbart og kostnadseffektivt.

Bestill katalog

Andre hyttemodeller

ORIGINAL

ORIGINAL

Fra 2 027 600,-
2 - 4
1 - 2
Fra 56,4 m²
HORISONT

HORISONT

Fra 2 402 500,-
2 - 3
2
Fra 74,6 m²
TE

TE

Fra 2 449 400,-
3 - 4
1 - 2
Fra 71,5 m²
LUFTIG

LUFTIG

Fra 2 686 100,-
2 - 4
1 - 2
Fra 64,2 m²
FRAM

FRAM

Fra 2 844 100,-
2 - 3
1 - 2
Fra 78,7 m²
HÅ

HÅ

Fra 3 646 000,-
3
2
Fra 120,7 m²
RAW

RAW

Fra 4 569 300,-
4 - 5
3
Fra 147,8 m²

Kontakt oss

  • Tromsnesvegen 61
    2634 Fåvang
  • +47 970 96 000
  • post@blaneas.no

Informasjon

Våre hus
Våre hytter
Til salgs
Anneks og boder

Om oss

Våre selgere
Vår historie
Personvernerklæring
Informasjonskapsler

NOHF.png

© Alle rettigheter reservert 2026 Laget av Red Orange Technologies.

Facebook-f Instagram Youtube
ORIGINAL FRAM

Owning a home is a keystone of wealth… both financial affluence and emotional security.

Suze Orman
January 16, 2026 Friday!
Hytter
  • Login
Forget Password?