Boliger

  • Bestill katalog
  • Se våre hytter
  • Se våre hus
  • Til salgs
  • Om oss
    • Hus og hytter
      • Våre hus
      • Våre hytter
      • Til Salgs
      • Hyttefelt
      • Visningshytte
    • Andre bygg
      • Anneks og boder
      • Kuben – påbygg
      • Minihus
    • Inspirasjon
      • Bildegalleri
      • Nyheter
    • Om oss
      • Våre medarbeidere
      • Leverandører av høy kvalitet
      • Vår historie
  • Kontakt oss
Boliger

  • Bestill katalog
  • Se våre hytter
  • Se våre hus
  • Til salgs
  • Om oss
        • Andre bygg
          • Anneks og boder
          • Kuben - påbygg
          • Minihus
        • Hus og hytter
          • Våre hus
          • Våre hytter
          • Til Salgs
          • Hyttefelt
          • Visningshytte
        • Inspirasjon
          • Bildegalleri
          • Nyheter
        • Om oss
          • Våre medarbeidere
          • Leverandører av høy kvalitet
          • Vår historie
  • Kontakt oss
Lysbo

Lysbo

LysboLysbo.-Interior-2Lysbo.-Interior-1

Property ID : 

None

Share
Soverom
2
Baderom
1
BRA
71,8 sq ft

Beskrivelse

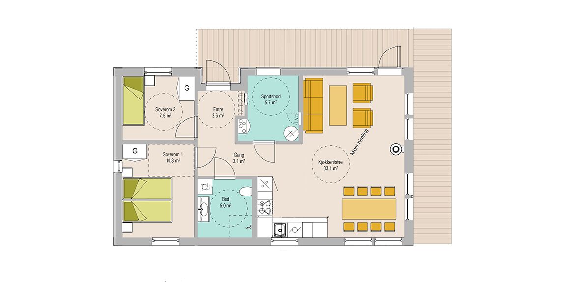
Kompakt bolig med alle funksjoner på ett plan for hele familien

Denne eneboligen på ett plan har en moderne og praktisk planløsning, med store vindusflater i gavlveggen som gir rikelig med naturlig lys og en åpen følelse. Boligen består av to soverom, et romslig bad og en stor sportsbod for ekstra lagring. En romslig entre med gode garderobemuligheter gir et funksjonelt inngangsparti, og mellomgangen gir god flyt mellom rommene. Kjøkken og stue er kombinert i en åpen og lys løsning, som skaper et sosialt og innbydende oppholdsrom. De store vindusflatene i gavlveggen gir utsikt mot fine omgivelser og gir ekstra lys til oppholdsrommet. Fra stuen er det direkte tilgang til uteområdet gjennom en egen terrassedør.

Soverom

2

Baderom

1

BRA

71,8 m²

Kundepris, område 1 *

Fra 2 512 700,-

Ferdig hus over grunnmur

Kundepris, område 2 *

Fra 2 605 700,-

Ferdig hus over grunnmur

Største lengde Største bredde
7 m
11,7 m
Prisene er inklusive mva. og basert på indeksnivå SSB desember 2025:165,1
Sone 1 gjelder inntil 10 mil fra Lillehammer. Sone 2 fra 11-25 mil fra Lillehammer. Områder utenfor, pris på forespørsel Forbehold om feil i prisliste.

Leveransebeskrivelse

Innholdsrik leveranse

For våre boligmodeller så har vi valgt en god standard som utgangspunkt. Her får du en kvalitetsleveranse med tidsriktige materialvalg, fint utseende som igjen gjør at du opplever dette som en god standard.

Utvendig

Felles for leveransen:
  • Ytterdør Strand, hvitmalt med glass
  • Digital dørlås elektronisk (sjekk pris farger)
  • Boddør tett, hvitmalt
  • Ytterkledning dobbelfals rett 10mm med spor, transparent grunning
  • Inntrekte 3 lags vinduer for energieffektivitet, hvitmalt
  • Takrenne i sort stål med nedløp
  • Bunnledninger (i kundens betongplate), rør/oppstikk vann/avløp jfr. std. tegning.
  • Utekran på vegg
  • Inntaksskap for strøm
  • Utelamper
  • Blåseisolerte vegger/himling som gir energieffektivitet
  • Takverk konstruert tung belastning 650KWn
  • Takstige sort
  • Øvrige synlige beslag leveres i sort
  • Snøfangere når det er krav, sort
  • Solid og bred vindski i limtreutførelse
  • Balkonger leveres med tre rekkverk og trykkimpregnert gulv
  • Balansert ventilasjon

Innvendig

Entre
  • Downlights med dimmer
  • Kvalitetsgulvet Coastal OAK, aquastop
  • Trefiberplater på vegg, skyggeprofil, hvit, miljøvennlig, svanemerket og anbefalt av Norges Astma- og Allergiforbund.
  • Tak-ess inspirasjon i himling, foliebelagt, profilert med v-fuge. Miljøvennlig og fri for PCB.
  • Listverk glatt rund hvit
  • Når det leveres trapp leveres den hvitmalte vanger/spiler/håndrekke og eiketrinn med stusstrinn.

Kjøkken/Stue

  • Kvalitetskjøkken fra Norema
  • Kvalitetsgulvet Coastal OAK
  • Trefiberplater på vegg, skyggeprofil, hvit, miljøvennlig, svanemerket og anbefalt av Norges Astma- og Allergiforbund.
  • Tak-ess inspirasjon i himling, foliebelagt, profilert med v-fuge. Miljøvennlig og fri for PCB.
  • Listverk glatt rund hvit
  • Innerdører Line 1 speil, kompakt hvit
  • Stålpipe sort med peisovn og glassplate på gulv
  • Panelovn

Soverom

  • Kvalitetsgulvet Coastal OAK
  • Trefiberplater på vegg, skyggeprofil, hvit, miljøvennlig, svanemerket og anbefalt av Norges Astma- og Allergiforbund.
  • Tak-ess inspirasjon i himling, foliebelagt, profilert med v-fuge. Miljøvennlig og fri for PCB.
  • Listverk glatt rund hvit
  • Innerdører Line 1 speil, kompakt hvit
  • Panelovn
  • Taklampe

Bad

  • Downlights med dimmer
  • Vegghengt toalett
  • Baderomsinnregning med underskap og speil m/lys, iht. tegning
  • Dusjvegger iht tegning 90*90, innfellbare dører
  • Badreomsplater, Craced cement
  • Gulvflis 60x60cm med sokkelflis og varmekabler
  • Tak-ess inspirasjon i himling, foliebelagt, profilert med v-fuge. Miljøvennlig og fri for PCB.
  • Listverk glatt rund hvit
  • Innerdører Line 1 speil, kompakt hvit

Vaskerom

  • Gulvflis 20x20cm med sokkelflis og varmekabler
  • Badereomsplater, Craced cement
  • Tak-ess inspirasjon i himling, foliebelagt, profilert med v-fuge. Miljøvennlig og fri for PCB.
  • Listverk glatt rund hvit
  • Innerdører Line 1 speil, kompakt hvit
  • Taklampe

 

 

WC

  • Vegghengt toalett
  • Servantinnredning med speil og lys, iht. tegning
  • Kvalitetsgulvet Coastal OAK
  • Trefiberplater på vegg, skyggeprofil, hvit, miljøvennlig, svanemerket og anbefalt av Norges Astma- og Allergiforbund.
  • Tak-ess inspirasjon i himling, foliebelagt, profilert med v-fuge. Miljøvennlig og fri for PCB.
  • Listverk glatt rund hvit
  • Innerdører Line 1 speil, kompakt hvit
  • Taklampe

Teknisk, bod/teknisk rom

  • Gulvflis 20x20cm med sokkelflis
  • Innerdører Line 1 speil, kompakt hvit
  • Trefiberplater på vegg, skyggeprofil, hvit, miljøvennlig, svanemerket og anbefalt av Norges Astma- og Allergiforbund.
  • Tak-ess inspirasjon i himling, foliebelagt, profilert med v-fuge. Miljøvennlig og fri for PCB.
  • Listverk glatt rund hvit
  • Taklampe

Bod innvendig

  • Kvalitetsgulvet Coastal OAK
  • Trefiberplater på vegg, skyggeprofil, hvit, miljøvennlig, svanemerket og anbefalt av Norges Astma- og Allergiforbund.
  • Tak-ess inspirasjon i himling, foliebelagt, profilert med v-fuge. Miljøvennlig og fri for PCB.
  • Listverk glatt rund hvit
  • Innerdører Line 1 speil, kompakt hvit
  • Taklampe

Sportsbod utenfor yttervegg

  • Uisolert og synlig reisverk vegg/tak
  • Leveres intet på gulv
  • Tett boddør, hvit
  • Taklampe

Utover dette kan det naturligvis gjøres tilpasninger og oppgraderinger om ønskelig. Ta kontakt for dialog med en av våre boligrådgivere for tilpasninger.

Viktig for deg å vite og som er en del av vår leveranse

  • Norsk Standard 3425 kontrakt som bygger på Bustadoppføringslova. Dette betyr at du som privatperson er sikret lovverk som ivaretar deg som kjøper på en trygg og forutsigbar måte. Blant annet betyr dette at du:
    • I byggeperioden er sikret garantistillelse på 10 % av kontraktsbeløp, samt forsikring på bygget.
    • Fra overtagelse har du 5 års reklamasjonstid, denne garanti på 5 % stilles også av på leveransen fra Blåne.
  • Ansvarlig søker og samordner byggesøknaden og føler opp til og med ferdigattest.
  • Ansvarlig prosjekterende for enkel situasjonsplan med terrengprofil som følger byggesøknaden
  • Ansvarlig prosjekterende for tegning, konstruksjon og det arkitektoniske.
  • Bygger iht. byggeteknisk forskrift TEK 17.
  • Veggelementer produserer på vår fabrikk i Gudbrandsdalen, dette sikrer tørre elementer ut på byggeplass som igjen gir kortere uttørkingsfase.
  • Isolering skjer på byggeplass i vegger og himling. Sprøyteisolering sikrer det beste resultatet og gir meget kompakte og energieffektive boliger/hytter.
  • Blånes ansatte byggeledere og faste snekkere følger opp byggeplassen.
  • Rigg, stillas, frakt, heising og losji for snekkere er inkludert for Blånes leveranse
  • Blåne benytter kjente og sterke merkevarer gjennom solide norske samarbeidspartnere.
  • Overlevering gås sammen med kunde og i tråd med Bustadoppføringslova.
  • Etter ett år kommer vi tilbake til deg på etterårsbefaring.

Andre husmodeller

Lunbo

Lunbo

Fra 2 411 000,-
2
1
Fra 71,8 m²
Lysbo

Lysbo

Fra 2 512 700,-
2
1
Fra 71,8 m²
Hjem

Hjem

Fra 3 129 500,-
3
1
Fra 90,2 m²
Fram

Fram

Fra 3 314 500,-
3
1
Fra 93,6 m²
Fri

Fri

Fra 4 123 400,-
3
2
Fra 136,9 m²
Eikly

Eikly

Fra 4 373 100,-
4
2
Fra 158,8 m²
Lyst

Lyst

Fra 4 531 100,-
3
2
Fra 154,8 m²
Tid – A

Tid – A

Fra 4 624 200,-
3
2
Fra 164,5 m²
Hub

Hub

Fra 4 719 400,-
4
2
Fra 154,5 m²
Eikly Duo

Eikly Duo

Fra 4 856 200,-
4
3
Fra 159,5 m²
Raff – T

Raff – T

Fra 4 909 200,-
3
2
Fra 154,9 m²
Tid – T

Tid – T

Fra 5 149 300,-
4
2
Fra 192,3 m²
Flyt – S

Flyt – S

Fra 5 380 200,-
4
2
Fra 223,5 m²
Stil – T

Stil – T

Fra 5 521 700,-
4
2
Fra 203,4 m²
Stil – S

Stil – S

Fra 5 583 300,-
4
2
Fra 204,6 m²
Steil – SA

Steil – SA

Fra 6 104 200,-
4
3
Fra 217,5 m²

Legg igjen en kommentar Avbryt svar

Din e-postadresse vil ikke bli publisert. Obligatoriske felt er merket med *

Kontakt oss

  • Tromsnesvegen 61
    2634 Fåvang
  • +47 970 96 000
  • post@blaneas.no

Informasjon

Våre hus
Våre hytter
Til salgs
Anneks og boder

Om oss

Våre selgere
Vår historie
Personvernerklæring
Informasjonskapsler

NOHF.png

© Alle rettigheter reservert 2026 Laget av Red Orange Technologies.

Facebook-f Instagram Youtube
Lunbo

Owning a home is a keystone of wealth… both financial affluence and emotional security.

Suze Orman
februar 10, 2026 tirsdag!
Boliger
  • Login
Forget Password?