Blane

  • Bestill katalog
  • Se våre hytter
  • Se våre hus
  • Til salgs
  • Om oss
    • Hus og hytter
      • Våre hus ‏‏‎
      • Våre hytter
      • Til Salgs
      • Hyttefelt
      • Visningshytte
    • Andre bygg
      • Anneks og boder
      • Kuben – påbygg
      • Minihus
    • Inspirasjon
      • Bildegalleri
      • Nyheter
    • Om oss
      • Våre medarbeidere
      • Leverandører av høy kvalitet
      • Vår historie
  • Kontakt oss
Blane

  • Bestill katalog
  • Se våre hytter
  • Se våre hus
  • Til salgs
  • Om oss
        • Andre bygg
          • Anneks og boder
          • Kuben - påbygg
          • Minihus
        • Hus og hytter
          • Våre hus ‏‏‎
          • Våre hytter
          • Til Salgs
          • Hyttefelt
          • Visningshytte
        • Inspirasjon
          • Bildegalleri
          • Nyheter
        • Om oss
          • Våre medarbeidere
          • Leverandører av høy kvalitet
          • Vår historie
  • Kontakt oss
Banner Image
Banner Image
Banner Image
Banner Image
Banner Image
Banner Image
Banner Image
Banner Image
Banner Image
Banner Image
Banner Image

Jølster - Moderne, ny hytte på sjeldan god utsiktstomt - fjelltur, topptur, fiske, alpin og golf

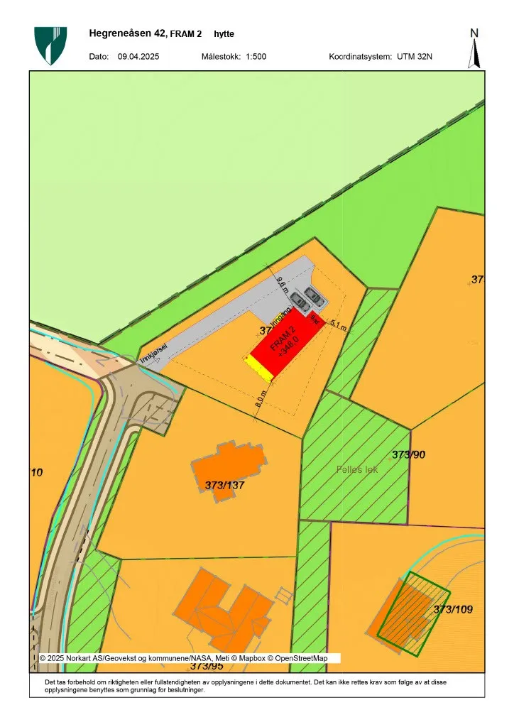
Beliggenhet: Hegrenesåsen 42, Vassenden

Prisantydning: 4 290 000,-

Omkostninger: 19 750 ,-

Totalpris: 4 508 750,-

Nøkkelinfo

Soverom: 3

Bruksareal: Eier (Selveier) m²

Tomteareal: 1008 m²

Eiendomstype: Hytte

Fasiliteter:

  • Alpinanlegg
  • Balkong/Terrasse
  • Bilvei frem
  • Garasje/P-plass
  • Golfbane
  • Lademulighet
  • Peis/Ildsted
  • Utsikt
  • Fiskemulighet
  • Innlagt strøm
  • Innlagt vann
  • Turterreng
Media Content

Blåne AS

Navn: Pål Anders Kårstad

Agenttittel: Hyttekonsulent

E-post: pak@blaneas.no

Telefon: +47 99 23 38 55

Brosjyre

  • PDF Icon Situasjonsplan
  • PDF Icon Plantegning
Ta kontakt med oss for visning eller spørsmål

Om eiendommen

Beliggenhet

Stor tomt – fantastiske naturomgjevnader – heilårsdestinasjon!

No har du sjansen til å sikre deg ei heilt ny hytte på ei av dei beste tomtene i Hegrenesåsen hyttefelt i Jølster – midt i eit naturparadis som byr på aktivitetar og opplevingar gjennom heile året.

Stor tomt og god plass rundt deg
Hytta ligg fint til på ein solrik og romsleg tomt på heile 1 mål. Her har du god plass rundt deg, flotte utsiktsforhold og høve til å nyte både ro og privatliv. Tomta er lett tilgjengeleg og har god plass til parkering, uteområde og eventuell vidare utvikling.

Ny og moderne hytte – klar for nye eigarar
Hyttemodellen Fram har ei funksjonell og gjennomtenkt planløysing med god takhøgde, store vindauge som slepp naturen inn, og materialval som passar perfekt inn i det vakre fjellandskapet. Her får du komfort og stil i kombinasjon med ekte hyttestemning.

Hytta er prosjektert, men ikkje bygd. Dvs. at her kan du sjølve være med å bestemme interiør og tilpasse eigne løysingar.

Midt i naturen – sommar og vinter
Frå hytta har du direkte tilgang til eit nettverk av flotte turstiar og fjelltoppar – perfekt for både korte og lange turar om sommaren. Om vinteren er området eit eldorado for toppturar på ski og snøsikre forhold gjer det mogleg å nyte vintereventyret til langt utpå våren.

Kort veg til aktivitetar for heile familien

  • Jølster Skisenter – alpint og langrenn

  • Jølster Golfklubb – 9-hols bane i spektakulære omgjevnader

  • Jølstravatnet – bading, fiske og padling

  • Lokale turmål og kulturtilbod i vakre Jølster

Ei investering i både livskvalitet og fritid
Enten du drøymer om ei familiehytte, ein stad for avkobling frå kvardagen eller ei trygg investering, så er denne hytta i Hegrenesåsen eit glimrande val.

Velkomen til visning – her kan hyttedraumen din bli verkeleg!

Generelt

Ved signering av kjøpekontrakt før sommaren (seinast ila juni 2025), kan vi klare å ha denne flotte hytta klart allereie før vinteren kjem. Dette fordi vi i Blåne AS bygger delar av hytta ferdig inne i eit tørt klima, så fraktar vi veggane frå vår fabrikk i Gudbrandsdalen til Jølster og monterer alt på ferdig støpt grunnmur. Deretter løftar vi takstolane på og vi får tett tak på ca. 1 veke. Når bygget er tett gjer vi ferdige innvendige overflater, rør og elektroarbeid.

På denne måten kan vi sikre kort byggetid kor materialar vert lite utsett for regn og fukt i byggetida. Dette gir eit betre bygg.

Adkomst/Tomteforhold

Stor sjølveigartomt på 1008 kvm. 

Tilkomst via felles privat veg. Det er pliktig medlemskap i veglaget kor kvar hytteeigar betalar 2 500,- per år. Dette går til å dekke brøyting og vedlikehald av felles privat veg. 


Kvifor kjøpe nybygg og kvifor av oss i Blåne AS

Å kjøpe ei prosjektert hytte gjennom Blåne Hytter er eit trygt, forutsigbart og smart val for deg som ønskjer å realisere hyttedraumen – utan overraskingar og usikkerheit undervegs.

Når du kjøper hytte hos oss, får du ein fast pris frå starten av. Du slepp dermed risikoen knytt til uforutsette kostnader og timebetaling til ulike handverkarar – noko som ofte gjer private byggeprosjekt både dyrare og meir tidkrevjande enn planlagt. Med Blåne får du ein totalpakke der alt er avklart på førehand – frå grunnarbeid til nøkkelferdig hytte.

Blåne AS har i tillegg lang erfaring og solid bransjekunnskap. Vi har bygd hytter over heile landet, og vi veit kva som skal til for å levere kvalitet – både når det gjeld materialval, løysingar og utføring. Me jobbar tett med dyktige fagfolk og leverandørar, og me hjelper deg gjennom heile prosessen – frå draum til ferdig hytte.

Med ei ny hytte får du også:

  • Lågare vedlikehald dei første åra

  • Moderne løysingar og energivennlege alternativ

  • Høg komfort og tilpassing etter dine behov

  • Tryggleik med nybygggaranti og profesjonell oppfølging

Gjer eit smart val – vel ei ny hytte frå Blåne!

Innhold

Hytta som går over ett plan, inneheld: 

  • Stove og kjøkken på 37,1 kvm
  • 3 soverom på 5,3 - 6,5 og 10,1 kvm
  • Bad på 4,8 kvm
  • Vaskerom/wc på 4,4 kvm 
  • Entre på 6 kvm
  • Gang på 4,5 kvm
  • I tillegg hems på 27,8 kvm (ikkje målbart areal)
Totalt 82,6 kvm BRA (Bruksareal)

Standard

Hytta vert levert med normal ny hyttestandard. Kjøpar kan gjere tilval etter eige ynskje. 

Slik hytta er prisa no er innvedige kvalitetar som følgjer: 

1-stavs laminat på alle tørre golv. På golv i entrè er det varmekabler og flis på golv. Det er behandla panel og listverk på vegget og i himling. Kjøkken leveres utan kvitevarer, men kan inngå som eit tilval. 

Våtrom (bad og vaskerom/wc) vert levert med fliser på golv, sokkelflis, samt flis i dusjhjørne på bad. Det vert og levert komplett baderomsinnredning på bad og vask toalett på wc.

Det er varmekablar på bad, vaskerom og entrè. Hytta vert i tillegg levert med vedom i stove. 

Modellen/3D rendering kan innehalde illustrasjonar som ikkje inngår i leveransen. Arelaer kan ha avvik frå teikninga. 

Nærområdet

Hegrenesåsen 42, Vassenden

Kontakt oss

  • Tromsnesvegen 61
    2634 Fåvang
  • +47 970 96 000
  • post@blaneas.no

Informasjon

Våre hus
Våre hytter
Til salgs
Anneks og boder

Om oss

Våre selgere
Vår historie
Personvernerklæring
Informasjonskapsler

Våre Salgssteder

  • Lillehammer
  • Fåvang og Norsk
  • Hyttesenter
NOHF

© Alle rettigheter reservert 2026 Laget av Red Orange Technologies.

Facebook-f Instagram Youtube
Blane
  • Login
Forget Password?